“质价比”绝了,高教园这个单价不到5万的项目他来了!一房一价表奉上
发布日期 2024-06-30
浏览量:212
北京建工·嘉境里南区11栋楼的预售证以下,指导价5万,据说开盘4万+。更亮眼的是,嘉境里是除万科东庐外,北京第二个“满配”项目。全屋柜体全部配齐,且是全屋定制到顶设计,除了柜子,还送了品牌家电。细节方面,也是相当到位,连电动晾衣杆都给做好了。
【土拍回顾】
2023年11月30日,北京市昌平区沙河镇西沙屯村、满井西队村棚户区改造土地开发B地块项目CP01-0201-0001、0002、0009地块公开土拍。规划为二类居住、基础教育用地,土地面积6.59万㎡,规划建筑面积15.44万㎡,需配建6969平方米15班幼儿园,由北京建工以35.4亿元的底价竞得,住宅楼面价约2.4万元/平方米。销售指导价为5万元/平方米,浮动8%。案名北京建工·嘉境里。
【区位】
项目位于北五环外,沙河高教园&创新基地的中间位置,天生的职住平衡板块。旁边是京藏高速,可以一路直达北三环,左右共有2条轨道交通,左边是S2东北环线沙河北站,直线距离约1300米。右边是昌平线直线距离约2500米。项目有配备的社区班车,直达地铁站。
【规划】
嘉境里一共分两个小区,共规划21栋4-18层的洋房+小高层,建面约74-154㎡,一共1430套。
【户型】
74㎡两居:
客厅+双卧朝南且南向2个大飘窗, U型厨房,总价约300多万。
86㎡三居:
南北通透+全明格局,客厅+主卧朝南,而且都带等宽大飘窗。餐客一体且等宽,公区视觉通透感很好。还拥有独立玄关+独立家政间,北侧两间卧室,还有黑科技加持,性价比很高。
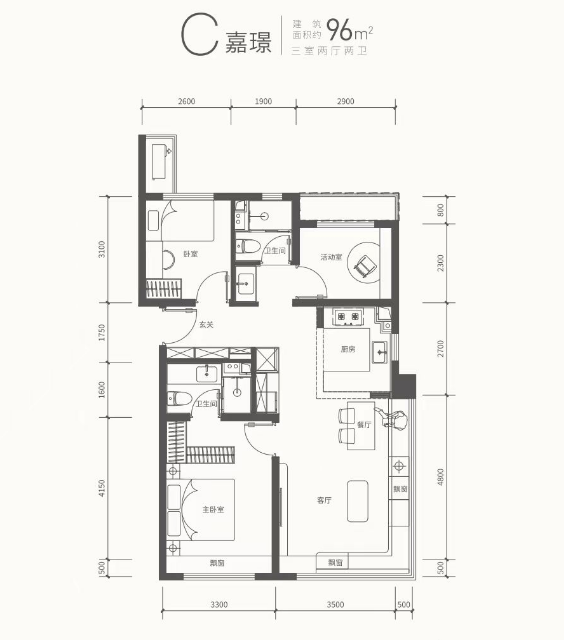
96㎡三居:
整体采光面超8米,客厅270°转角大飘窗,采光和视野都很棒。餐客厨一体,主卧套间设计,拥有独立卫浴,三分离主卫,超长的台面,增加了很多收纳空间。北侧两间次卧+次卫,入口玄关拥有非常充足的储物空间。
105㎡三居:
客厅+双卧朝南,面宽约9.7米;餐客厨一体化设计,独立餐厅区,餐厅旁有非常充足的收纳空间。主卧套房设计,带独立主卫。每个空间都很方正,空间利用率很高,全屋全明格局,还有三个南向大飘窗。
125㎡四居三卫:
经典的的四叶草全明格局,四间居室分于四角,三代人共居可以做到互不打扰。中央餐客厨一体化设计,大U型厨房,独立餐厅区,两边拥有非常充足的收纳空间。主卧是套房,带独立衣帽区和卫生间。2间次卧+厨房朝北,次卫干湿分离,空间利用率很高,是四居里的理想格局。
140㎡三室两厅三卫:
约4.5米面宽的方厅,LDK一体化设计,酒店式主卧套房。南向双套房设计,北侧双儿童房,满足二孩家庭及三代同堂的居住需求,兼顾实用与舒适。
154㎡四室两厅三卫:
双套房设计,南向约12米面宽,270°无柱转角飘窗,尽享阳光与自然的拥抱。主卧套房,主卫带浴缸, LDK一体化设计。
【配套】
商业:恒大城汇金街商业、玖耀里及隆兴购物商场、八达岭奥特莱斯、乐多港购物广场、昌平万科悦荟、超极合生汇、海淀大悦城(建设中)、万达广场(建设中)等
教育:沙河镇第二幼儿园、北京师范大学实验室幼儿园新校区、北京市中科幼教昌平区沙河幼儿园等十几所幼儿园;小学初中有北航附小、北师大附小附中;另项目东侧和北侧一路之隔规划幼儿园、小学、初中(九年一贯制教育配套)
医疗:北大国际医院、北京积水潭医院回龙观院区、沙河中西医结合医院、北京市昌平区中医医院、北京北京昌平区中西医结合医院
环境:蟒山国家森林公园、十三陵水库、万亩滨河森林公园
【一房一价表】

上一篇 : 广州黄埔迎来全国最大体量分房,旧改进程不断提速
下一篇 : 500亿级“神盘”麓湖商业难题待解,万华“超级大盘模式”能否异地复制?